博睿装饰
广州博睿装饰工程有限公司是一家专业从事高端别墅、住宅、酒店会所园林等设计装饰工程公司,为中国建筑装饰协会,IFDA国际装修协会……
荣誉资质
广州博睿装饰工程有限公司是一家专业从事高端别墅、住宅、酒店会所园林等设计装饰工程公司,为中国建筑装饰协会,IFDA国际装修协会……
服务流程
广州博睿装饰工程有限公司是一家专业从事高端别墅、住宅、酒店会所园林等设计装饰工程公司,为中国建筑装饰协会,IFDA国际装修协会……
博雅空间 睿智生活
我们致力于将传统与现代,东西方文化等各种元素完美融合,从新时代的生活视角,为追求个性,品味,奢华生活的中高端客户打造专属的定制生活设计
获奖案例
我们致力于将传统与现代,东西方文化等各种元素完美融合,从新时代的生活视角,为追求个性,品味,奢华生活的中高端客户打造专属的定制生活设计
实景案例
我们致力于将传统与现代,东西方文化等各种元素完美融合,从新时代的生活视角,为追求个性,品味,奢华生活的中高端客户打造专属的定制生活设计
热装楼盘
我们致力于将传统与现代,东西方文化等各种元素完美融合,从新时代的生活视角,为追求个性,品味,奢华生活的中高端客户打造专属的定制生活设计
代言设计,给饰界一张名片
专业为客户提供设计咨询、施工、主材匹配、家居软装个性定制一体化服务
项目经理
专业为客户提供设计咨询、施工、主材匹配、家居软装个性定制一体化服务
我们只会做精品
坚持以做行业标杆工程为目标,严格按照行业最高标准进行施工工程管理,专注服务,专注细节
核心工艺
坚持以做行业标杆工程为目标,严格按照行业最高标准进行施工工程管理,专注服务,专注细节
在建工地
坚持以做行业标杆工程为目标,严格按照行业最高标准进行施工工程管理,专注服务,专注细节
选材标准
坚持以做行业标杆工程为目标,严格按照行业最高标准进行施工工程管理,专注服务,专注细节
优质选材
坚持以做行业标杆工程为目标,严格按照行业最高标准进行施工工程管理,专注服务,专注细节
整体软装
无设计,不装修!博睿装饰首创硬软一体化全案设计,卓越设计团队领航高端家居设计,一站式帮您解决,省心、省事、省钱!
定制优势
无设计,不装修!博睿装饰首创硬软一体化全案设计,卓越设计团队领航高端家居设计,一站式帮您解决,省心、省事、省钱!
软装案例
无设计,不装修!博睿装饰首创硬软一体化全案设计,卓越设计团队领航高端家居设计,一站式帮您解决,省心、省事、省钱!
软装套餐
无设计,不装修!博睿装饰首创硬软一体化全案设计,卓越设计团队领航高端家居设计,一站式帮您解决,省心、省事、省钱!
博睿装饰,良心做事
致力于在设计,工艺环保用材方面不断创新,引领公司和客户一同成长,为客户创造价值,在发展的道路上不断前行
售后保障
品质家装,金牌售后,博睿提供专业高效的售后服务,保障客户的装修利益,售后服务热线:400-183-8968
装修攻略设计攻略
设计攻略
Design Attack
“林”宅
发布时间:2019-10-18作者:博睿装饰
  项目名称:“林”宅
 
  项目地点:南天名苑
 
  项目规模:213㎡
 
  博睿设计师:吴伟强
 
  业主需求:业主是一对年轻的夫妻,家里有父母和小孩(1男1女),他们热爱生活,追求时尚,设计的新家希望能带点轻奢的感觉,轻而不浮。在满足业主生活需求的基础上,化繁为简,仅用黑白灰的色调加上干净的线条,简简单单为业主营造一个有质感的家。在设计施工过程中,幸运的是业主在设计上没有太多的干涉,给予我们充分的发挥空间,全案由我们整体把控。当新家呈现在业主面前的时候,他们肯定的赞许让我们觉得设计是一件幸福的工作,也因此结缘成为了好朋友。
 
  设计说明:
 
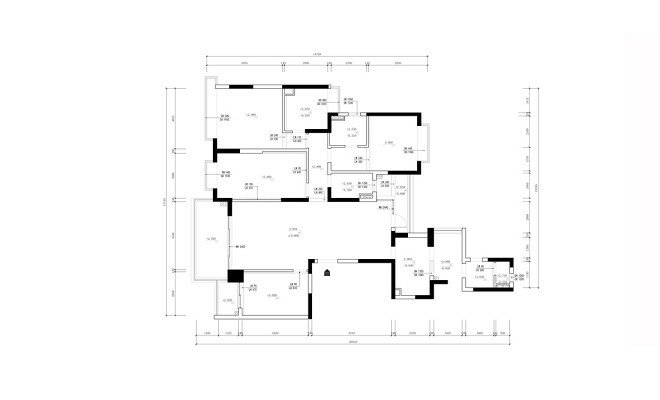
  户型主要对一下平面进行了调整:
        (1)设计师调整了原电视墙的位置,改为沙发区域,然而电视墙利用隐形门的概念,把大门以及长辈房房门一体化设计,让空间更具有延展性和完整性。
 
  (2)厨房使用率低,把原来的生活阳台区域跟厨房合并,增加水吧台,解决餐厅区域的收纳问题。
 
  (3)餐厅与厨房之间采用暗藏移门,让空间更加灵活与开放。
 
  (4)由于业主要求,主卧要有衣帽间,因此在不影响男孩房的使用功能外,可以在其空间里分割一定的空间来满足衣帽间的需求。
 
  原始户型图
  平面方案布置图
  简约不等于简单,电视墙利用隐形门的概念,把大门以及长辈房房门一体化设计,让空间更具有延展性和完整性。
  立面上简洁的线条呈序列对望,完成静谧、平和的情绪表达。
  不需太多造型,只求色彩和谐。
  在自成体块的格局中挖掘各空间内在潜力,打开生活的无限可能。
  整体色调偏素雅,以黑白灰为基础色调,点缀少量橙色,为空间更加生动的气息。
  从客厅延展过去就是餐厅,在设计上做了统一,让两个空间没有隔阂感,也让空间动线更为流畅。电视机背景墙删繁就简,在满足功能需要的前提下,将空间、人及物进行合理精致的组合。
  精心的搭配,随处体现主人的格调。
 
  素雅的空间不显乏味。
  生活也需要一些仪式感,一盘水果,一束鲜花,一本书,美美的享受漫时光。
  设计解决的不仅是美感,更是通过对空间的塑造,解决人、物与空间的和谐关系,让设计顺应生活,使生活变得更美好!
  主卧考虑业主的喜好,选择色彩较为厚重的深蓝色作为背景墙,与其他区域的浅灰色调融合,极简不失沉稳。
  在男孩的卧室中,设计师在空间上采用了蓝灰色作为主色调,地面铺上木质地板,白色的柜门板,搭配起来舒适自然。
  女儿房利用色彩丰富整个空间,没有过多复杂造型及材质,形成简单的生活态度。
  卫生间
  
热门文章推荐

扫一扫关注我们

Copyright © 广州博睿装饰工程有限公司. All Rights Reserved. 粤ICP备15008765号-1 Powered by vancheer.
预约设计
Book A Design
免费预约量房,个性化装修设计,施工、软装搭配等一站式服务
专业装修设计师一对一服务